
univ. dipl. prav., nepremičninski posrednik
Oddamo luksuzno in moderno zasnovano, še nevseljeno stanovanje na lahko dostopni ter razgledni lokaciji (neto 105,6 m2).
Stanovanje je locirano v novem nizkoenergijskem bloku z dvigalom in dvema parkirnima mestoma v podzemni garaži.
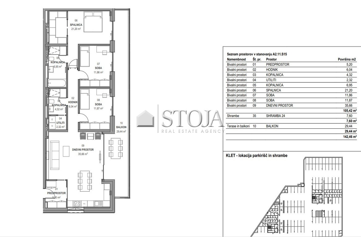
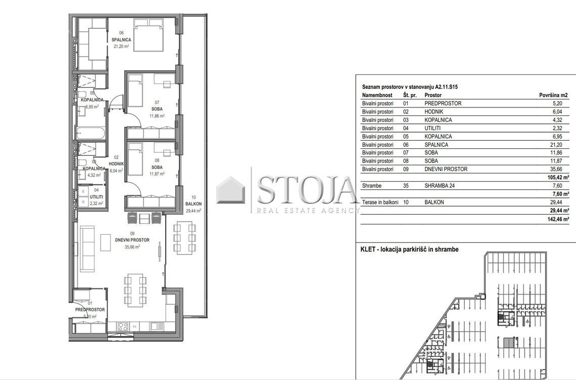
Izredno funkcionalen tloris obsega predprostor z garderobo, velik dnevno-bivalen prostor s kuhinjo, jedilnico ter izhodom na veliko pokrito in razgledno teraso (28,2 m2).
V nadaljevanju se nahajajo intimni spalni deli, ki obsegajo dve mladinski sobi, mladinsko kopalnico z utilitijem ter ločeno master suito z lastno kopalnico ter walk-in garderobo.
Iz vseh bivalnih prostorov je omogočen dostop na prostorno povezano teraso.
Stanovanje se ponaša se z opremo visokega cenovnega ranga, Bosch aparati, talnim ogrevanjem, rekuperacijo, visokim stropom, J-V lego, klimatizacijo, 3-slojnimi panoramskimi okni, električno vodenimi žaluzijami, itd.
V neposredni bližini se nahaja vsa potrebna infrastruktura, kot tudi dve mednarodni šoli (OŠ Danile Kumar in British international school).
Obstoja tudi možnost dogovora za dodatno opremo, na voljo takoj, vabljeni k ogledu!
Pogoj najemodajalca za sklenitev posla:
- Minimalna doba najema 25 mesecev, ali po dogovoru,
- Znesek varščina znaša: 2X najemnina,
- Najemnik prevzame v plačilo del dodatnih storitev, tj. sestave najemne pogodbe, kar vključuje naslednja dejanja posrednika: izvedbo primopredaje nepremičnine in sestavo zapisnika, sodelovanje pri prenosu naročnin, pripravo in hrambo slikovnega gradiva, skladno s cenikom, navedenim v splošnih pogojih poslovanja nepremičninske družbe tako, da najemnik pri oglaševani najemnini in trajanju najema plača enkratni znesek za dodatne storitve 2.500 EUR plus 22 % DDV, skupaj 3.050 EUR.
DDV se obračuna samo za dodatne storitve, ne pa za najemnino!