
nepremičninski posrednik
Commercial Space for Rent – Vič–Rudnik
The commercial space is located on the ground floor of a smaller mixed-use residential and commercial building near the Rudnik bypass, providing quick and easy accessibility.
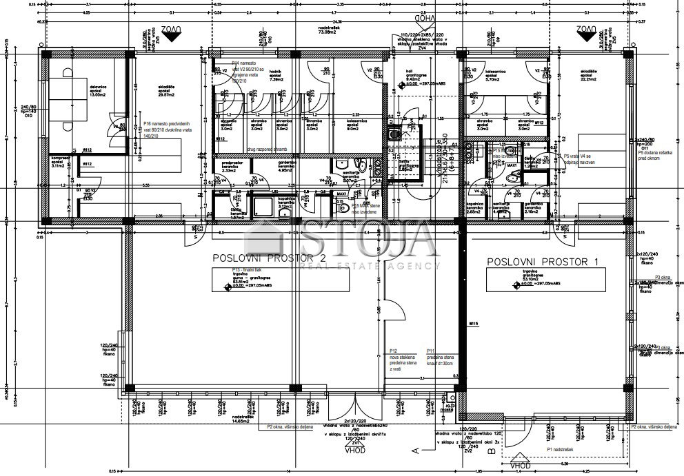
Layout of the premises
The total area of the space is approximately 216 m² and includes:
sales and exhibition area: 94 m²
storage: 55 m²
workshop: 13 m²
service area (sanitary facilities, cloakroom, and shower): 18 m²
The space is suitable for various service, sales, or repair activities.
Equipment and technical features
heating and hot water preparation: own gas boiler or air conditioning units
orientation: south / north
year of building construction: 2013
ground floor location allows easy access and good visibility for clients
Parking
The property includes 5 parking space.
Rent
3.533 € = 2,896 € + 22% VAT
Option for additional rental
On the 1st floor, it is also possible to rent office space of 61 m² at the price of:
14 € / m² + 22% VAT
Location advantages
The Vič–Rudnik business zone offers excellent traffic connections and quick access to the Ljubljana bypass, which is a great advantage for employees, business partners, and clients. All necessary infrastructure as well as numerous business and retail activities are located nearby.
For more information or to arrange a viewing, please contact us.
Lessor's condition for concluding a deal:
- The lessee accepts part of the additional services in payment, i.e. drawing up the rental agreement, which includes the following actions of the intermediary: execution of the handover of the real estate and drawing up of minutes, participation in the transcription of subscriptions, preparation and storage of image material, in accordance with the price list specified in the general terms and conditions of the real estate company, so that the tenant pays the advertised rent and duration of the lease one-off amount for additional services EUR 2896 plus 22% VAT, total EUR 3.533.
VAT is charged only on additional services, not on rent!