
univ. dipl. prav., nepremičninski posrednik
We offer top-quality, fully furnished medical office spaces in an excellent and easily accessible location.
The spaces are located on the ground floor of a modern, newer building and include two private parking spaces in the underground garage, which are charged additionally at €125/parking space. There is also sufficient visitor parking available around the building.
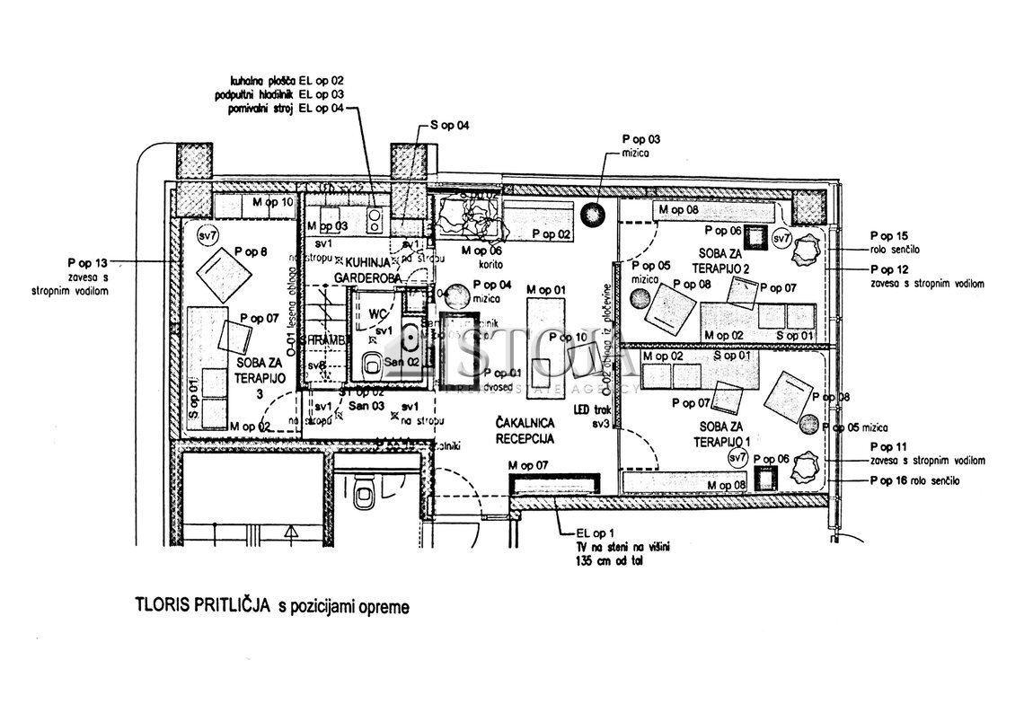
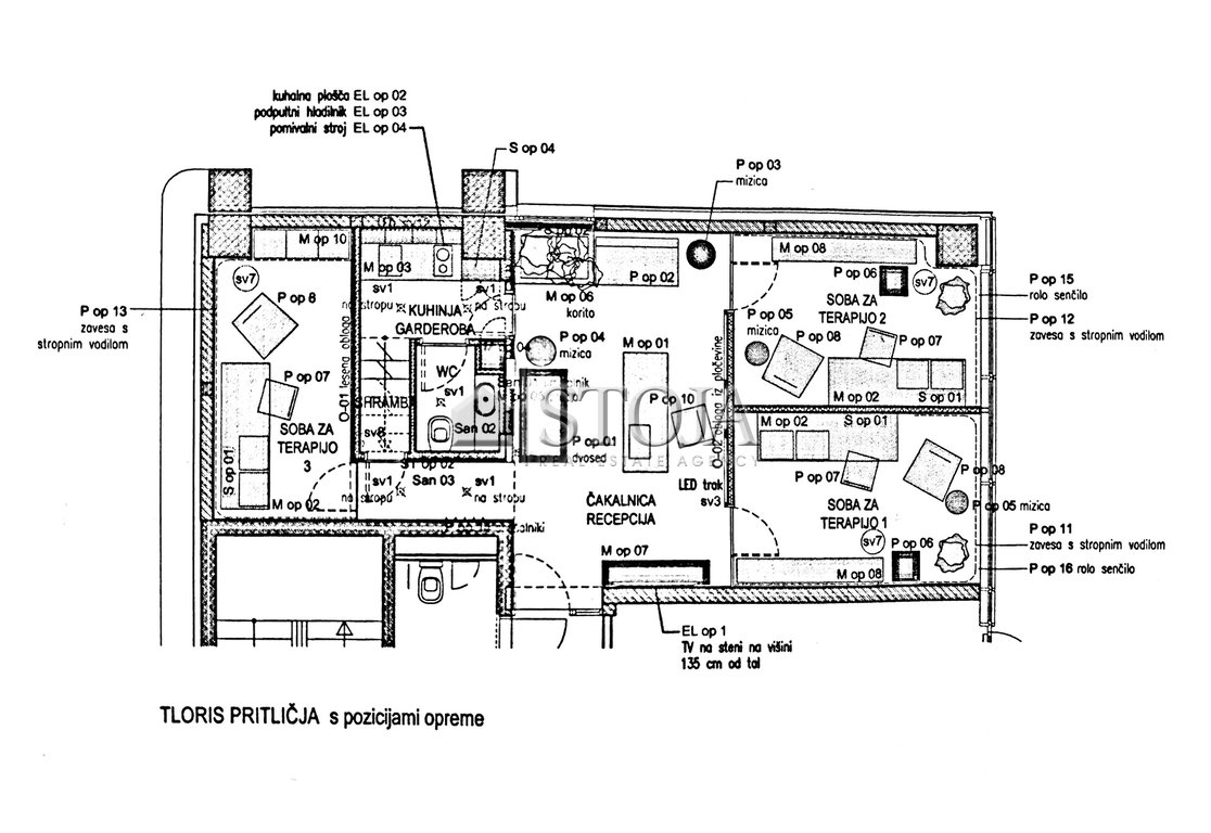
The offices feature good visibility from the passing road, custom-made equipment, ample storage cabinets, high ceilings (3.7 m), central heating and cooling, disabled access, central ventilation with heat recovery, easy access from the highway, etc.
The functional layout includes a reception with a waiting area, three separate medical offices, one of which has no window, restrooms, a kitchenette, and an office on the mezzanine.
The spaces are suitable for healthcare activities, specialist clinics, private practices, beauty salons, or related high-end business activities.
The tenant can also customize the spaces according to their needs, available immediately, welcome to visit!
Lessor's condition for concluding a deal:
- Minimum rental period 25 months,
- The lessee accepts part of the additional services in payment, i.e. drawing up the rental agreement, which includes the following actions of the intermediary: execution of the handover of the real estate and drawing up of minutes, participation in the transcription of subscriptions, preparation and storage of image material, in accordance with the price list specified in the general terms and conditions of the real estate company, so that the tenant pays the advertised rent and duration of the lease one-off amount for additional services EUR 2.650 plus 22% VAT, total EUR 3.233.
An additional 22% VAT is charged on the advertised price!