
Nepremičninski posrednik
Oddamo popolnoma novo hišo, z razgledom od Ljubljanskega gradu, Rožnika, do Triglava in Kamniških planin, samo 8 minut vožnje od centra Ljubljane in v bližini nakupovalnih centrov na Rudniku.
Hiša je vseljiva Junija.
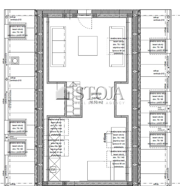
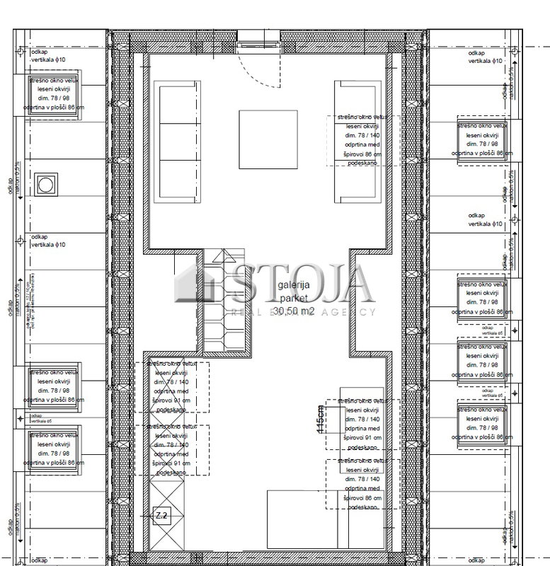
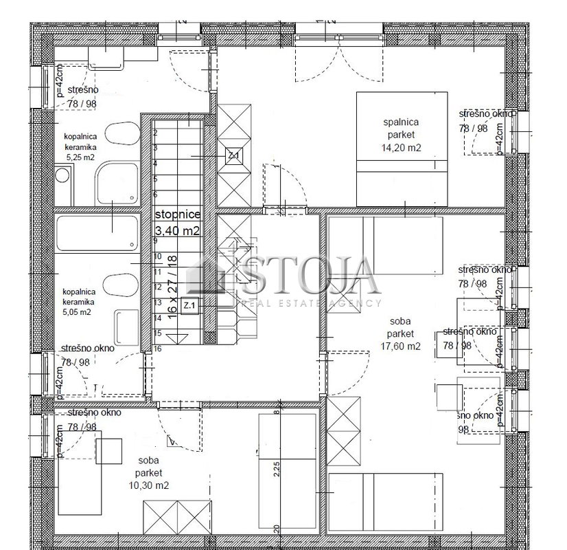
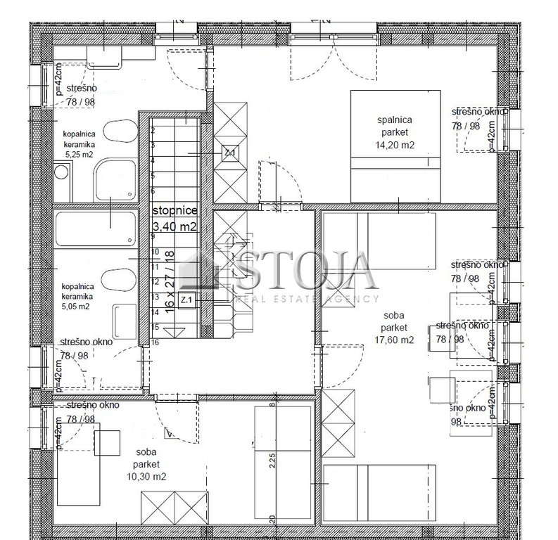
Izdelana je tako, da se lahko prilagodi prvemu najemniku in sicer tako, da lahko ima od 2 do 5 sob (spalnic). Ima pa tudi 2 kopalnici + wc kateri lahko ima tudi tuš.
Sodobna gradnja narekuje talno ogrevanje, trislojna zasteklitev, prezračevanje z rekuperacijo Lunos in 4x klimatskimi napravami. Hiša je dobro izolirana, kar pomeni nizke obratovalne stroške. Iz dnevne sobe imate izstopi na pokrito teraso in ograjen vrt, ob hiši pa je vrtna shramba.
Hiša pripadata dve parkirni mesti s predpripravo za električno avto polnilnico.
Lokacija:
Hiša je del mirne soseske. V bližini je vsa potrebna infrastruktura.
Prednost njene lokacije pa je tudi odlična povezava do mesta, saj je v bližini hiše avtobusna postaja LPP, hkrati pa je do AC priključka oddaljena samo 1,5 km, do središča mesta 5 km in do nakupovalnega središča Rudnik le 2,5 km.
Okolica hiše nudi neposredno bližino narave in možnosti za rekreacijo ter sprostitev v zelenem okolju.
Hiša je opremljena z:
- 2kompletno opremljeni kopalnici + wc,
- kuhinja z novimi gospodinjskimi aparati BOSCH,
- jedilni prostor z mizo in stoli,
- sedežna garnitura,
- led razsvetljava (notri in zunaj),
- okna z zunanjimi žaluzijami,
- notranja vrata visoke kakovosti,
- 4x klimatske naprave,
- rekuperacija Lunos,
- plinska peč Bosch + zalogovnik sanitarne vode,
- termostat na wifi upravljanje,
- talno ogrevanje v vseh prostorih
- video domofon
Energetski razred: A2
Pogoj najemodajalca za sklenitev posla:
- Minimalna doba najema 12 mesecev,
- Znesek varščina znaša: 5.200 EUR,
- Najemnik prevzame v plačilo del dodatnih storitev, tj. sestave najemne pogodbe, kar vključuje naslednja dejanja posrednika: izvedbo primopredaje nepremičnine in sestavo zapisnika, sodelovanje pri prenosu naročnin, pripravo in hrambo slikovnega gradiva, skladno s cenikom, navedenim v splošnih pogojih poslovanja nepremičninske družbe tako, da najemnik pri oglaševani najemnini in trajanju najema plača enkratni znesek za dodatne storitve 2.600 EUR plus 22 % DDV, skupaj 3.172 EUR. DDV se obračuna samo na dodatne storitve, ne pa tudi na najemnino!