
univ. dipl. prav., nepremičninski posrednik
Oddamo vrhunsko urejene in v celoti opremljene ambulantne prostore na odlični in lahko dostopni lokaciji.
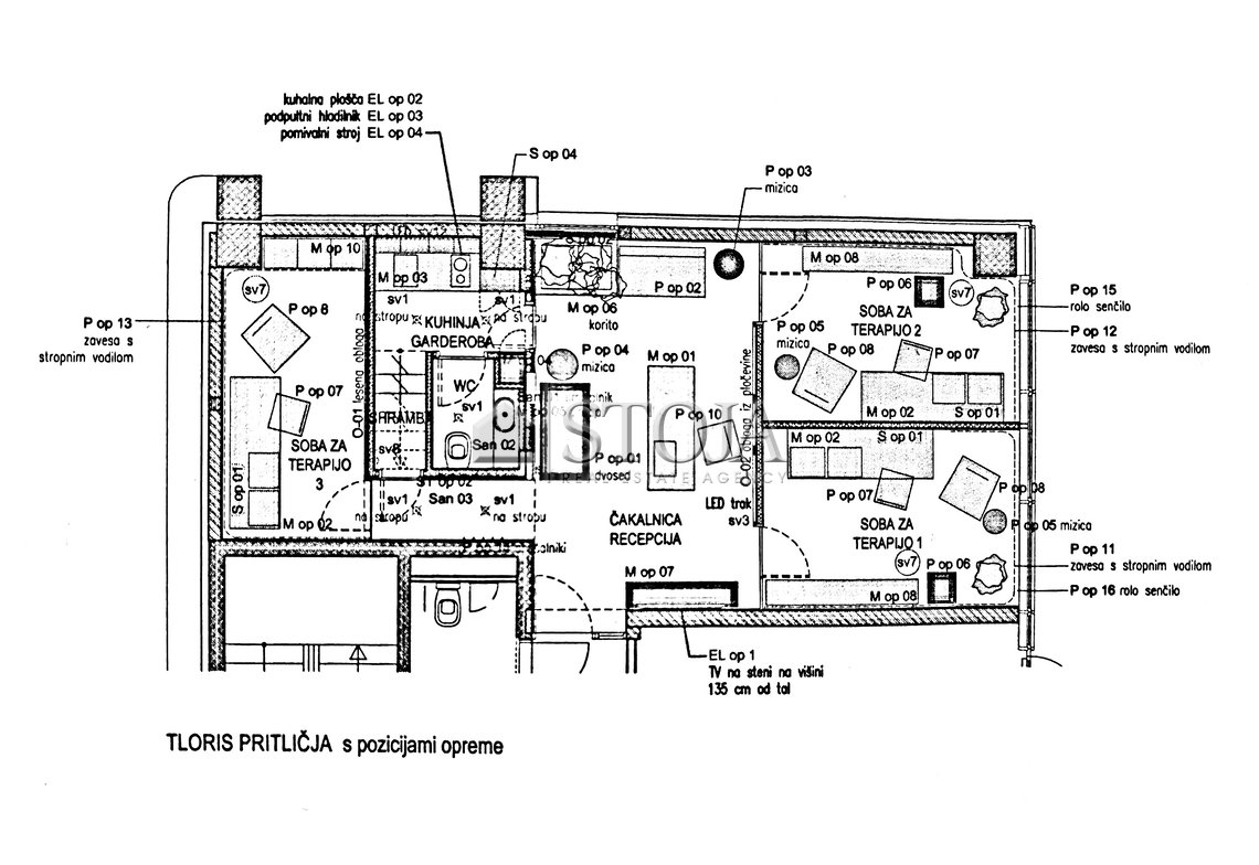
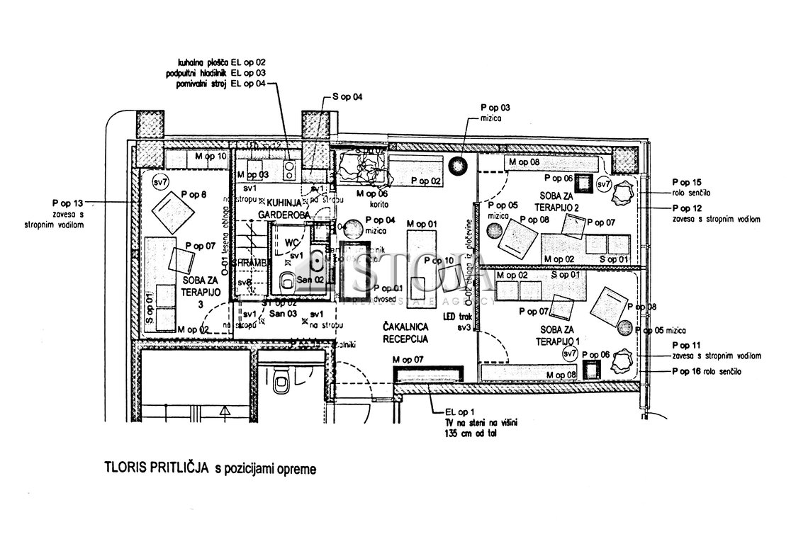
Prostori so locirani v pritličju modernega novejšega objekta in jim pripadata tudi dve lastniški parkirni mesti v podzemni garaži, ki se zaračunavata dodatno in sicer 125€/parkirišče. Dovolj parkirnih mest za obiskovalce je sicer tudi v okolici objekta.
Ambulante se ponašajo z dobro vidnostjo iz mimoidoče ceste, opremo po meri, veliko shranjevalnimi omarami, visokimi stropi (3,7 m), centralnim gretjem in hlajenjem, dostopom za invalide, centralnim prezračevanjem z rekuperacijo, enostavnim dostopom iz AC, ipd.
Funkcionalna razporeditev prostorov obsega recepcijo s čakalnico, tri ločene ambulante, pri čemer ena nima okna, sanitarije, čajnico ter pisarno na podestu.
Prostori so primerni tako za zdravstveno dejavnost, specialnistične ambulante, zasebne ordinacije, lepotilne salone ali sorodne poslovne dejavnosti višjega ranga.
Najemnik si lahko prostore preuredi tudi po svojih potrebah, na voljo takoj, vabljeni k ogledu!
Pogoj najemodajalca za sklenitev posla:
- Minimalna doba najema 25 mesecev ali po dogovoru,
- Najemnik prevzame v plačilo del dodatnih storitev, tj. sestave najemne pogodbe, kar vključuje naslednja dejanja posrednika: izvedbo primopredaje nepremičnine in sestavo zapisnika, sodelovanje pri prenosu naročnin, pripravo in hrambo slikovnega gradiva, skladno s cenikom, navedenim v splošnih pogojih poslovanja nepremičninske družbe tako, da najemnik pri oglaševani najemnini in trajanju najema plača enkratni znesek za dodatne storitve 2.650 EUR plus 22 % DDV, skupaj 3.233 EUR.
Na oglaševano ceno se obračuna še 22% DDV!